1房
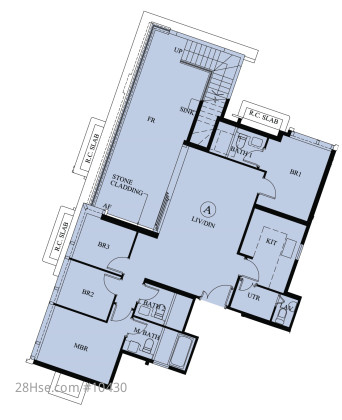
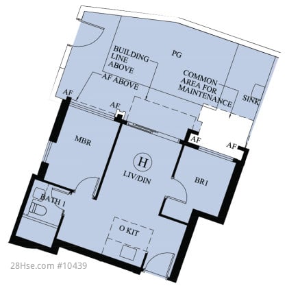
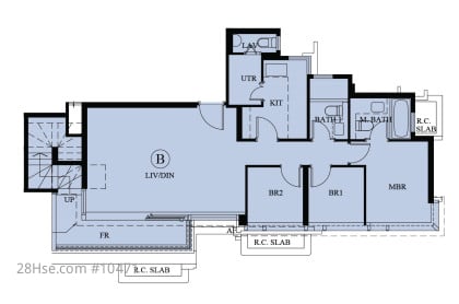
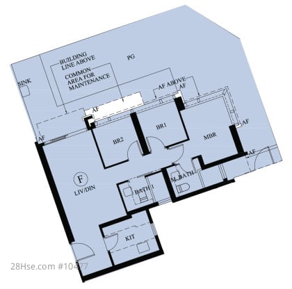
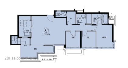
Bleu Avenue第2座: J室
20伙
302呎 - 305呎
已售罄
330.3萬 - 391萬




