No.1 HK Property Portal
Language 語言
|
Login
|
Register
Home
Buy
Rent
New Homes
Service Apartment
Estate
Valuation
Furniture
Mortgage
News
School Net
Agency
Eva Property Index
Home
Estate
New Territories
Shatin, Tai Wai, Fotan
Shatin
Dragons Range
Records
Court B
Tower 2
Unit Transaction Records
1
/1
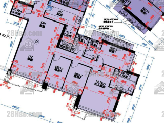
Dragons Range, Flat C, 1/f, Tower 2, Court B
Shatin No.33 Lai Ping Road
Unit Information
State:
Court B
Block:
Tower 2
Saleable area:
Saleable1,510ft²
Bedroom:
4
Transactions:
0
Open the WeChat application, tap on "Discover", then tap on "Scan". After that, scan the following QR code to follow the 28Hse WeChat public account.
OK
cancel
OK
OR
Message
Name
Email
Phone
Whatsapp
Reset
|
cancel
Send
繁體中文
簡體中文
English
Default
Office Buy
Office Rent
Carpark Buy
Carpark Rent
Carpark Buy
Carpark Rent