No.1 香港網上搵樓平台
Language 語言
|
會員登入
|
會員註冊
地產主頁
買樓
租屋
新盤
服務式住宅
屋苑成交
物業估價
家具
置業按揭
新聞資訊
校網
地產代理
易發樓價指數
地產主頁
屋苑成交
九龍
尖沙咀
The Austin
單位成交紀錄
第二期(Grand Austin)
T1A座
單位成交資料
1
/1
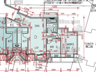
The Austin 第二期(Grand Austin)T1A座21樓 D室
尖沙咀 柯士甸站上蓋
單位資料
屋苑期數:
第二期(Grand Austin)
屋苑座數:
T1A座
實用面積:
實575呎
成交宗數:
0
打開Wechat應用程式,按「發現」後,再按「掃描」, 然後掃描以下QR Code 即可追蹤28Hse Wechat 公眾號。
確定
取消
確定
或
內容
姓名
聯絡電郵
聯絡電話
Whatsapp
重設
|
取消
發送
繁體中文
簡體中文
English
預設
辦公室 買賣
辦公室 租務
車位 買賣
車位 租務
店舖 買賣
店舖 租務