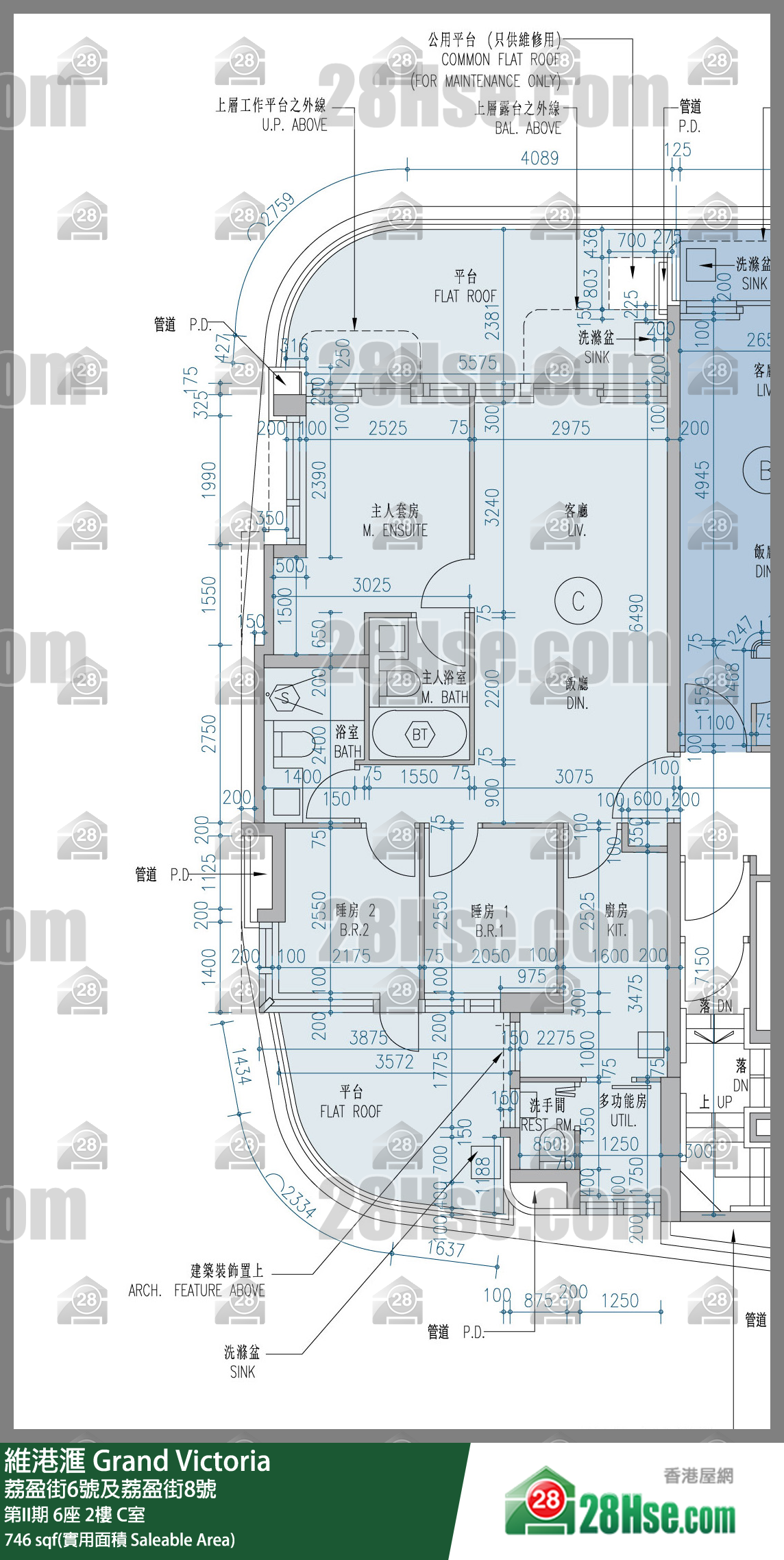
維港滙I 第II期 6座 2樓 C室

長沙灣 荔盈街6號及荔盈街8號

單位資料

屋苑期數:
第II期
屋苑座數:
6座
實用面積:
實746呎
房間數量:
3房
成交宗數:
1

單位成交紀錄

2023-06-12

成交價
$1,880 萬元
實用呎價
$25,201
成交類別
註冊處成交