棗梨雅道3號 棗梨雅道3號27樓 C室

何文田 棗梨雅道3號

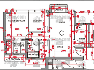
單位資料

屋苑座數:
棗梨雅道3號
實用面積:
實655呎
房間數量:
2
成交宗數:
0