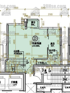
尚珒溋 2座 39樓 D室

啟德 沐泰街11號

單位資料

屋苑座數:
2座
實用面積:
實1,104呎
成交宗數:
1

單位成交紀錄

2023-12-06

成交價
$3,650 萬元
實用呎價
$33,062
成交類別
註冊處成交