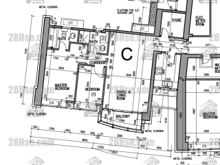
君臨天下 2座 55樓 C室

九龍站 柯士甸道西1號

單位資料

屋苑座數:
2座
建築面積:
建1,065呎
實用面積:
實805呎
房間數量:
2房
成交宗數:
1

單位成交紀錄

2024-12-30

成交價
$2,980 萬元
建築呎價
$27,981
實用呎價
$37,019
車位
1個
成交類別
註冊處成交
成交賺幅
+24.3%
上手成交日期
2010-04-21