利奧坊曉岸 1座5樓 A室

大角咀 利得街11號

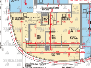
單位資料

屋苑座數:
1座
實用面積:
實368呎
房間數量:
2
成交宗數:
0