1-bedroom
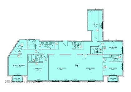
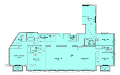
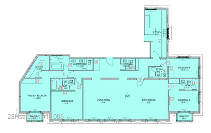
1 South Bay Close: unit 1B
1 units
291 ft²
Sale now -Sold -



