No.1 HK Property Portal
Language 語言
|
Login
|
Register
Home
Buy
Rent
New Homes
Service Apartment
Estate
Valuation
Furniture
Mortgage
News
School Net
Agency
Eva Property Index
Home
Estate
Hk Island
Sai Ying Pun, Shek Tong Tsui
Sai Ying Pun
Upton
Records
Upton
Unit Transaction Records
1
/3
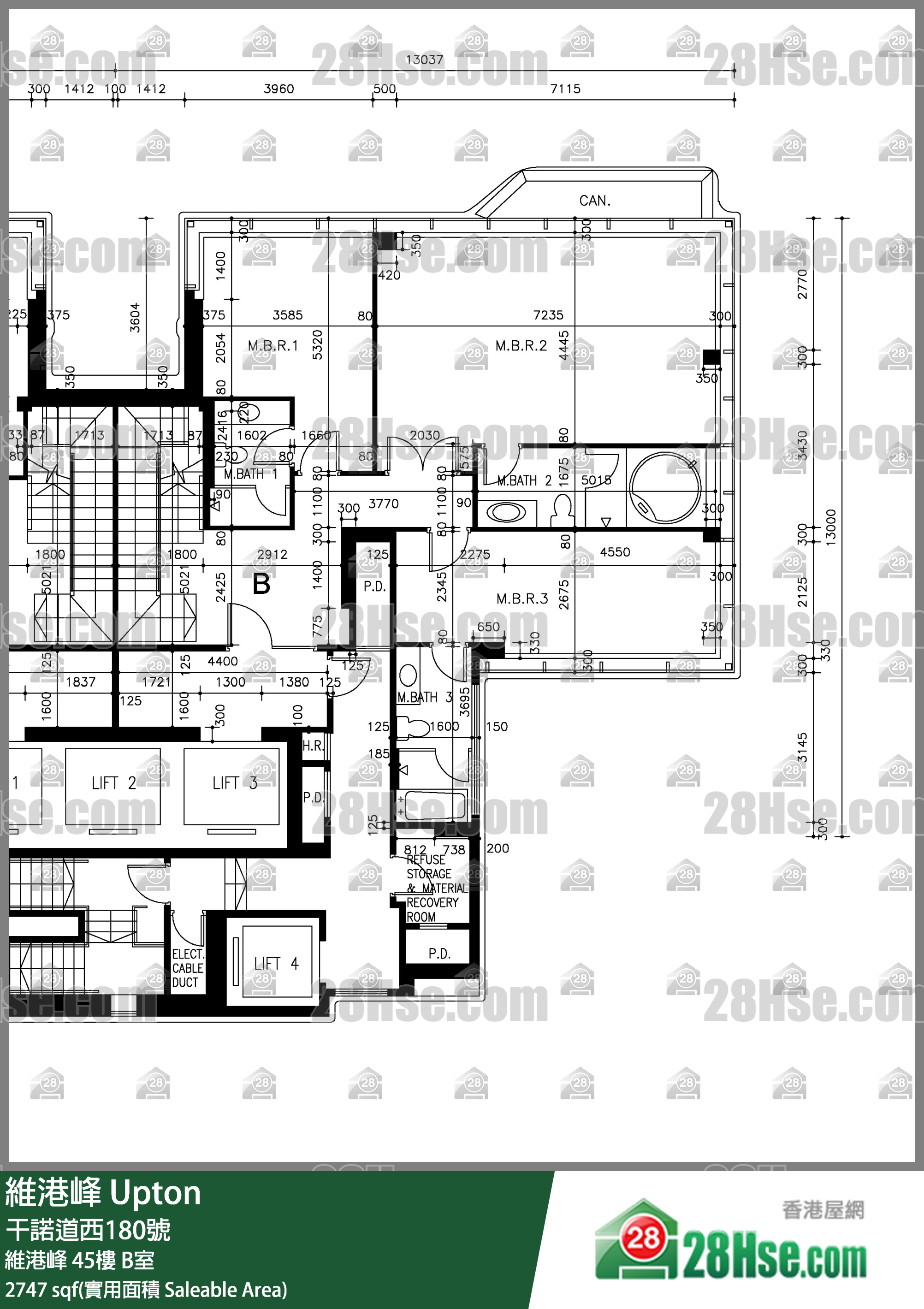
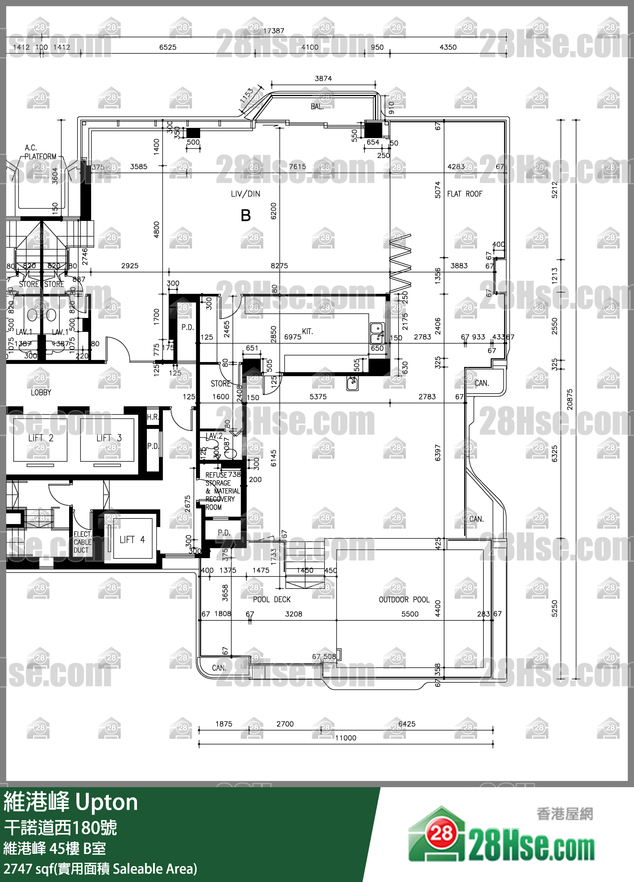
Upton, Flat B, 45/f, Upton
Sai Ying Pun No.180 Connaught Road West
Unit Information
Block:
Upton
Saleable area:
Saleable2,747ft²
Bedroom:
3
Transactions:
0
Open the WeChat application, tap on "Discover", then tap on "Scan". After that, scan the following QR code to follow the 28Hse WeChat public account.
OK
cancel
OK
OR
Message
Name
Email
Phone
Whatsapp
Reset
|
cancel
Send
繁體中文
簡體中文
English
Default
Office Buy
Office Rent
Carpark Buy
Carpark Rent
Carpark Buy
Carpark Rent