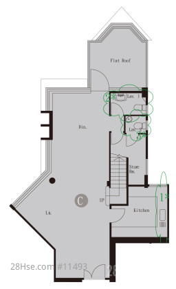
2房
第1座: A室
6伙
619呎
在售 -已售 -



