香島 5座 30樓 C室

筲箕灣 柴灣道33號

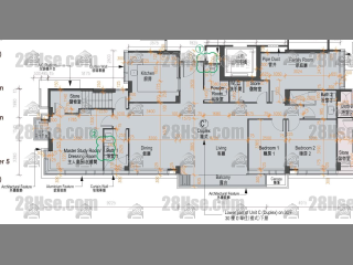
單位資料

屋苑座數:
5座
實用面積:
實2,105呎
房間數量:
4房
成交宗數:
1

單位成交紀錄

2021-04-22

成交價
$6,280 萬元
實用呎價
$29,834
車位
1個
成交類別
註冊處成交