香島 3座 32樓 A室

筲箕灣 柴灣道33號

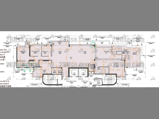
單位資料

屋苑座數:
3座
實用面積:
實1,870呎
房間數量:
4房
成交宗數:
1

單位成交紀錄

2020-06-30

成交價
$7,200 萬元
實用呎價
$38,503
車位
1個
成交類別
註冊處成交