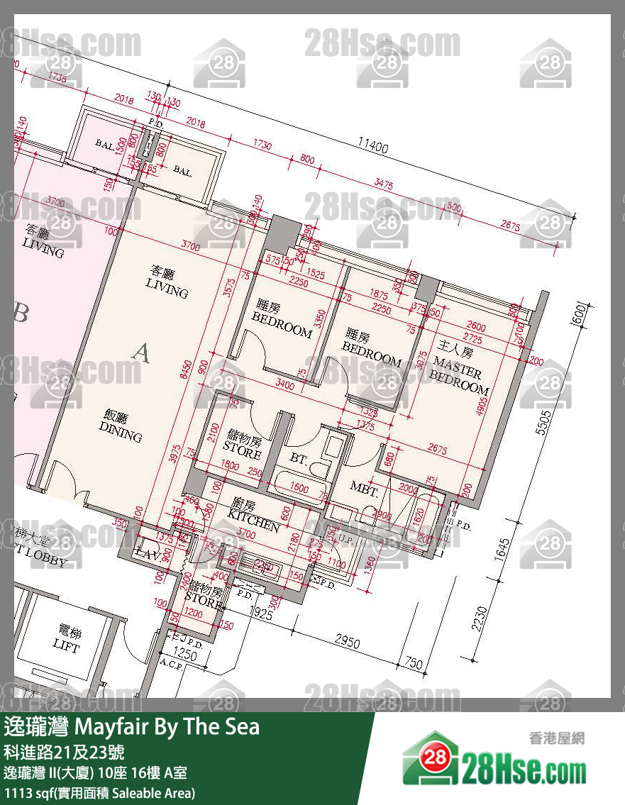
屋苑期數: | 逸瓏灣 II(大廈) |
屋苑座數: | 10座 |
實用面積: | 實1,113呎 |
成交宗數: | 1 |
成交價 |
$1,800 萬元
|
實用呎價 |
$16,173
|
成交類別 |
註冊處成交
|
成交賺幅 |
+13.7%
|
上手成交日期 |
2014-07-21
|