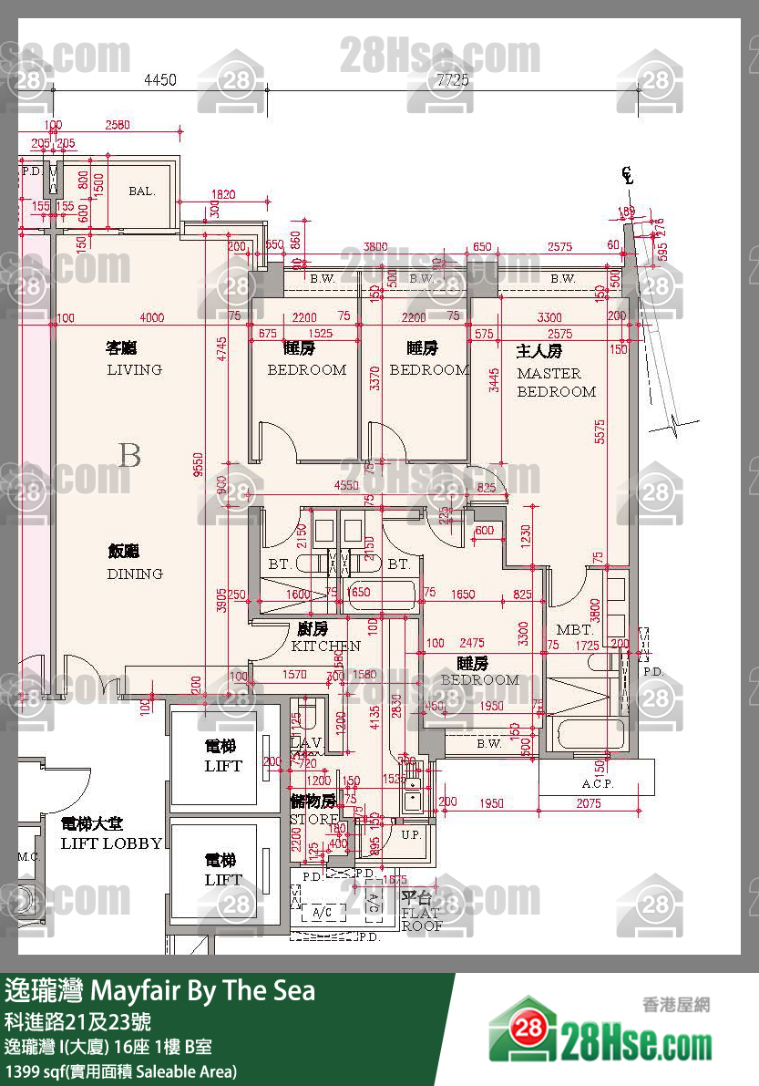
逸瓏灣 I & II 逸瓏灣 I(大廈)16座1樓 B室

白石角 科進路21及23號

單位資料

屋苑期數:
逸瓏灣 I(大廈)
屋苑座數:
16座
實用面積:
實1,399呎
房間數量:
4
成交宗數:
0