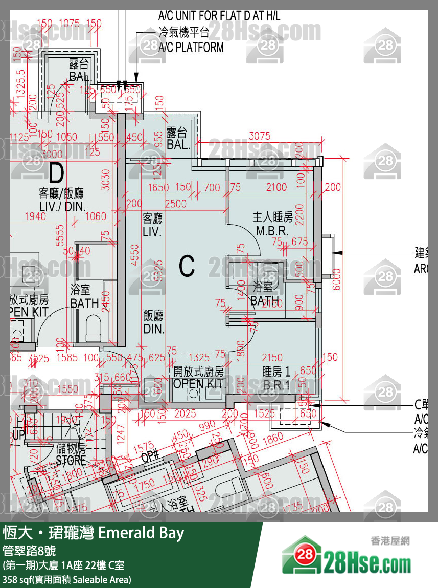
緹岸 (第一期)大廈 1A座 22樓 C室

屯門(青山公路) 管翠路8號

單位資料

屋苑期數:
(第一期)大廈
屋苑座數:
1A座
實用面積:
實358呎
房間數量:
2房
成交宗數:
1

單位成交紀錄

2019-11-27

成交價
$673.3 萬元
實用呎價
$18,807
成交類別
註冊處成交