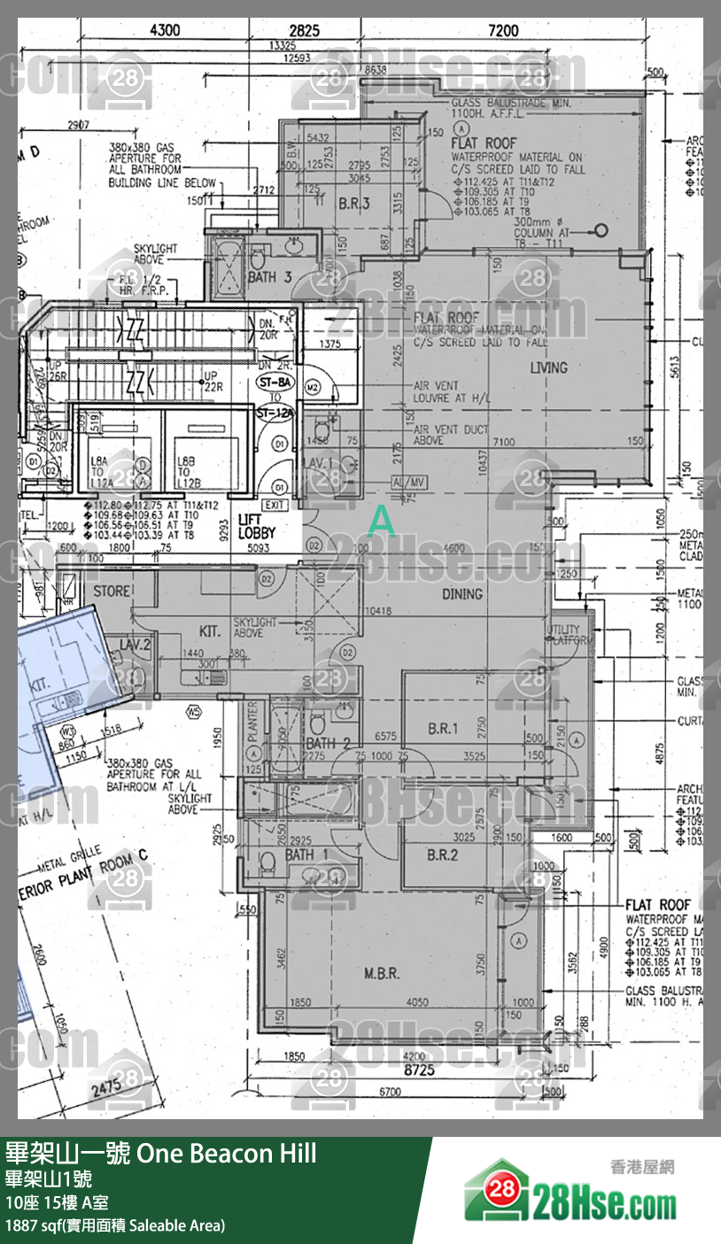
畢架山一號 10座 15樓 A室

九龍塘 筆架山道1號

單位資料

屋苑座數:
10座
建築面積:
建2,367呎
實用面積:
實1,887呎
房間數量:
4房
成交宗數:
1

單位成交紀錄

2021-05-20

成交價
$8,500 萬元
建築呎價
$35,910
實用呎價
$45,045
車位
1個
成交類別
註冊處成交
成交賺幅
+35.2%
上手成交日期
2015-04-16