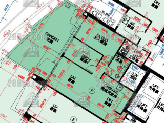
玖瓏山 日瓏閣2座地下 F室

沙田 麗坪路33號

單位資料

屋苑期數:
日瓏閣
屋苑座數:
2座
實用面積:
實623呎
房間數量:
2
成交宗數:
0