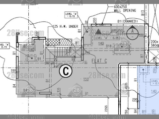
漾日居 5座42樓 C室

九龍站 柯士甸道西1號

單位資料

屋苑座數:
5座
建築面積:
建2,118呎
實用面積:
實1,642呎
房間數量:
4
成交宗數:
0