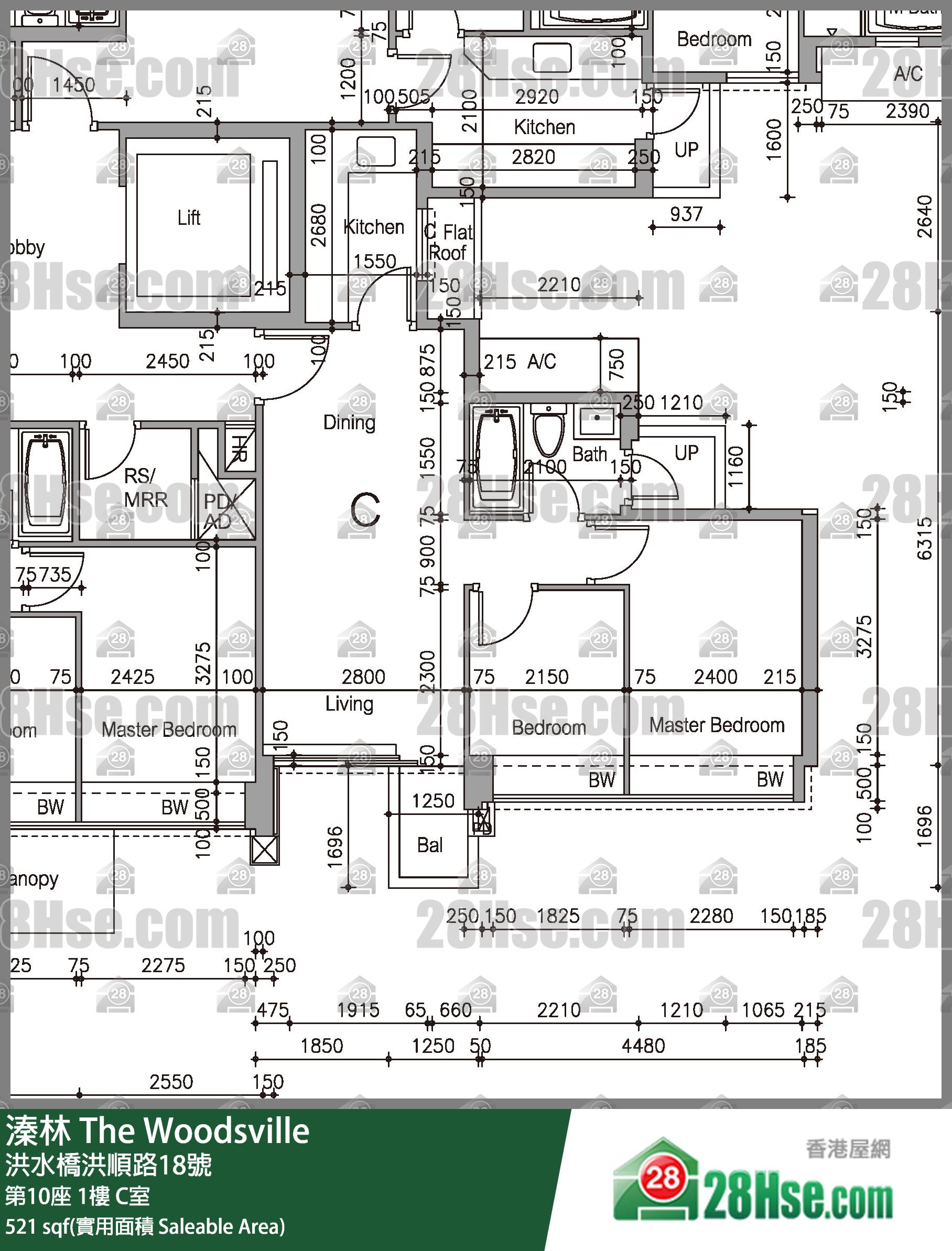
溱林 大廈 第10座 1樓 C室

洪水橋 洪水橋洪順路18號

單位資料

屋苑期數:
大廈
屋苑座數:
第10座
實用面積:
實521呎
房間數量:
2房
成交宗數:
1

單位成交紀錄

2020-07-03

成交價
$593.5 萬元
實用呎價
$11,392
成交類別
註冊處成交
成交賺幅
+58%
上手成交日期
2013-08-13