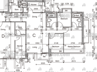
溱林 大廈 第7座 3樓 C室

洪水橋 洪水橋洪順路18號

單位資料

屋苑期數:
大廈
屋苑座數:
第7座
實用面積:
實694呎
房間數量:
3房
成交宗數:
1

單位成交紀錄

2019-07-02

成交價
$1,020 萬元
實用呎價
$14,697
成交類別
註冊處成交
成交賺幅
+70.4%
上手成交日期
2013-08-08