| 屋苑期數: | 大廈 |
| 屋苑座數: | 第7座 |
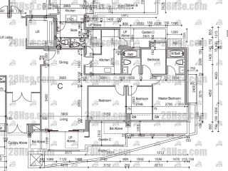
| 實用面積: | 實912呎 |
| 房間數量: | 4房 |
| 成交宗數: | 1 |
| 成交價 |
$1,050 萬元
|
| 實用呎價 |
$11,513
|
| 成交類別 |
註冊處成交
|
| 成交賺幅 |
+41.7%
|
| 上手成交日期 |
2013-08-08
|