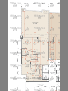
溋玥天賦海灣 屋苑第15座地下 D室

白石角 科進路8號

單位資料

屋苑期數:
屋苑
屋苑座數:
第15座
建築面積:
建1,310呎
實用面積:
實988呎
成交宗數:
0