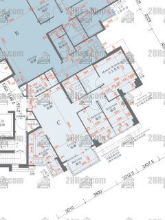
海鑽天賦海灣 大廈第8座8樓 C室

白石角 科進路9號

單位資料

屋苑期數:
大廈
屋苑座數:
第8座
實用面積:
實930呎
成交宗數:
0