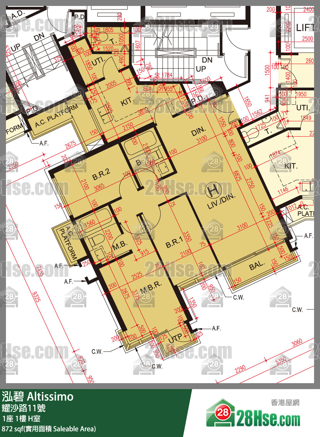
泓碧 大廈 1座 1樓 H室

馬鞍山 耀沙路11號

單位資料

屋苑期數:
大廈
屋苑座數:
1座
實用面積:
實872呎
成交宗數:
1

單位成交紀錄

2022-01-28

成交價
$1,437.6 萬元
實用呎價
$16,486
成交類別
註冊處成交