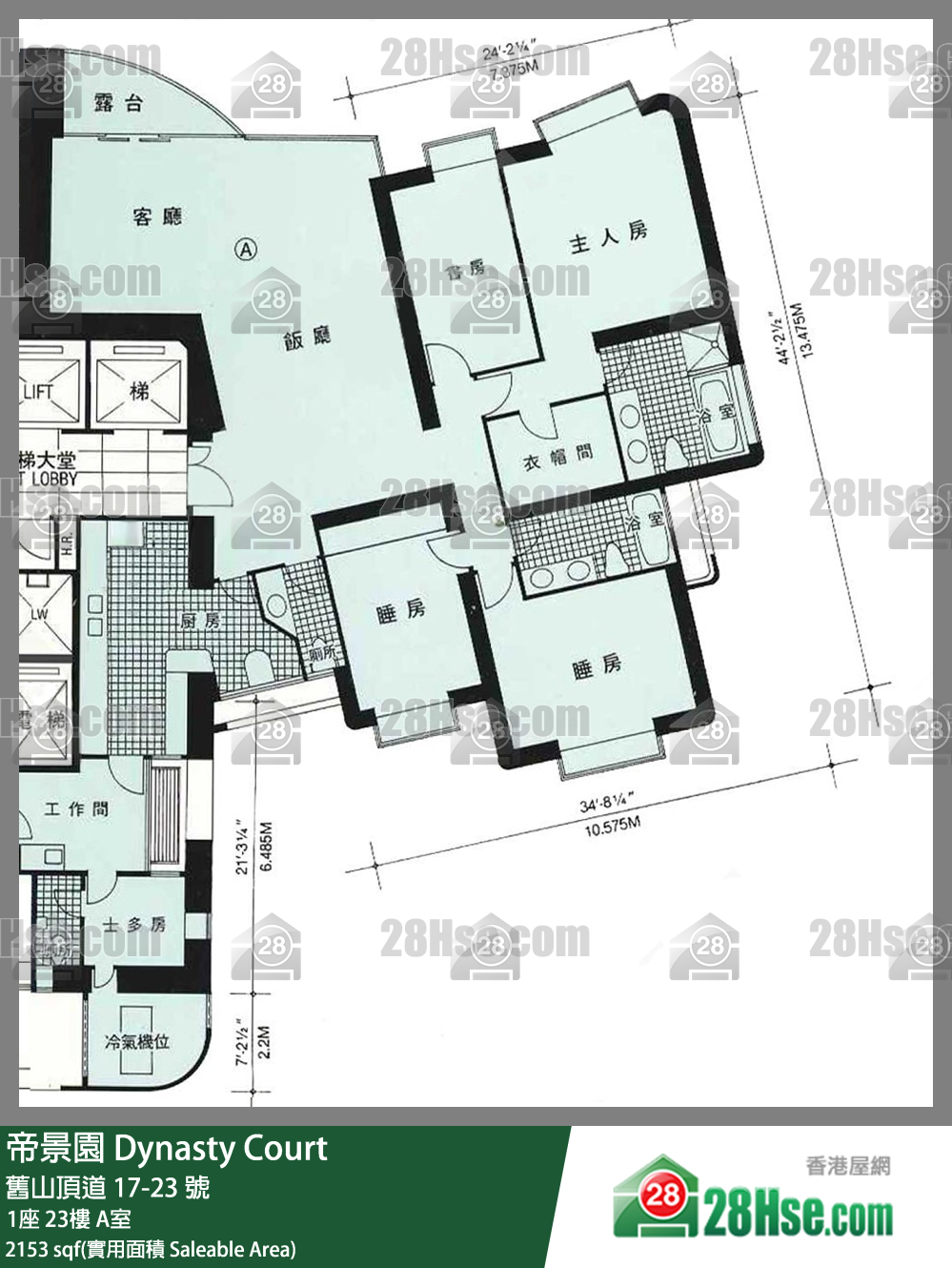
| 屋苑座數: | 1座 |
| 建築面積: | 建2,691呎 |
| 實用面積: | 實2,153呎 |
| 房間數量: | 3房 |
| 成交宗數: | 1 |
| 成交價 |
$8,380 萬元
|
| 建築呎價 |
$31,141
|
| 實用呎價 |
$38,922
|
| 車位 |
1個
|
| 成交類別 |
註冊處成交
|
| 成交賺幅 |
+140.1%
|
| 上手成交日期 |
2004-07-23
|