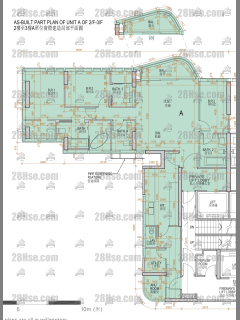
大學閣 1座 3樓 A室

西半山 旭龢道42號

單位資料

屋苑座數:
1座
實用面積:
實1,584呎
房間數量:
3房
成交宗數:
1

單位成交紀錄

2022-05-03

成交價
$6,800 萬元
實用呎價
$42,929
車位
1個
成交類別
註冊處成交