Fu Yuen Court #3591599 Rental Property Detail Page

Id# 3591599
No: HL20250930A (by agent)

Cheung Sha Wan Fu Yuen Court [Agency Ads]
Unit A, High Floor
Cheung Sha Wan Studio Apartment

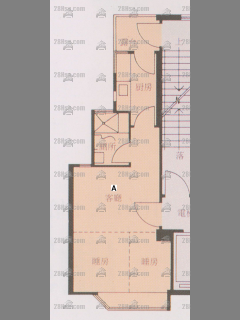
Practical layout
Open and spacious
Busy yet quiet
Convenient transportation

Apartment
Western Style Bldg
Stand-alone Building
Normal Ads
10 days ago posted
Visited#397
Decoration
With Electrical Appliance
Sole Agent
Elegant
Air conditioner
Water Heaters
Induction Hob
Cooker Hood
Created:2025-09-30 | Updated:2025-09-30
Mobile QRCode
Monthly Rental
Lease HKD$11,600
Rental Price includes
Gov tax, management fee
Gross Area
439 ft²
Unit Price: @26.4
Saleable Area
260 ft²
Unit Price: @44.6
Estate
Fu Yuen Court
Kowloon Cheung Sha Wan
Block and Unit: Unit A,High Floor,Fu Yuen Court
Building age: 32 Year
Floor zone
High Floor
Room and Bathroom
Studio 1 Bathroom
Kitchen type
Separate Kitchen
Pri School Net
Sec School Net
Address
Nos.143-145 Un Chau Street
Camp Street, Un Chau Street( Bus Stop )
14 m
Camp Street( Bus Stop )
20 m
Kiu Kiang Street, Castle Peak Road( Bus Stop )
87 m

Property Agency Company

Company License Number: E-324639-A000
Sell: 4 Rental: 5

Contact

袁太

Personal License Number: E-324639

Alice Lai  

Personal License Number: S-682482
Hints
To avoid any fraud. We recommend No any prior online payment to the landlord or agency before site inspection or face to face greeting.
Our admin will manually verify all agency identity registration. If you find any mis-presentation or conduct by the agency, you can use the complaint form to inform us. Our admin will take every reported case seriously. Or you can submit your case to EAA (Tel: 852-21112777) directly by quotating the AdsId. We are always working with EAA to handle every cases happend on 28Hse.