Ying Fuk Court #3746503 For Sale Property Detail Page

Id# 3746503
No: 71582 (by agent)

Wong Tai Sin Ying Fuk Court [Agency Ads]
High Floor(28-37|37/F)
[Bargaining For Large Room With Bamboo Shoot@向南楼 Quality] Green Form/Baiju Ii Is Suitable For Family

Zhuyuan North Village [The most beautiful high-rise unit to the south] Elegant decoration new net room suitable for family users can be negotiated @【白居二/绿表市场】 Years of experience to provide professional pre-sales and after-sales service Agency bank referral mortgage Free appraisal Referral from a lawyer Agent for water, electricity and coal renaming Mortgage enquiry, a dedicated person to provide information services, welcome to call and visit the building, welcome Whatsapp inquiries

Apartment
Home Ownership
Normal Ads
2 months ago posted
Visited#464
View
Decoration
Units' Feature
Good view
City view
Elegant
MTR nearby
Shopping Mall nearby
Created:2026-02-22 | Updated:2026-03-10
Mobile QRCode
Sell Price
Sell HKD$4.8 Millions
Premium Unpaid
Mortgage Monthly Repayment
Initial Payment HKD$1.44 Millions, Mortgage Ratio 70%
Interest Rate 3%, Years 25
The above payment is for reference only.
Gross Area
695 ft²
Unit Price: @6,906
Saleable Area
559 ft²
Unit Price: @8,587
Estate
Ying Fuk Court
Kowloon Wong Tai Sin
Block and Unit: High Floor(28-37|37/F),Ying Fuk Court
Building age: 24 Year
Floor zone
High Floor
Room and Bathroom
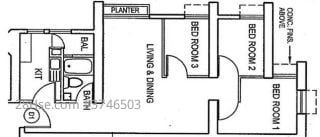
3 Bedrooms 1 Bathroom
Kitchen type
Separate Kitchen
Kitchen cooking mode
Open-frame cooking
Pri School Net
Sec School Net
Address
No.17 Wing Chuk Street
Pang Ching Court( Bus Stop )
1 min Walk
Chuk Yuen Estate Bus Terminus( Bus Stop )
2 min Walk
Chuk Yuen Estate( Bus Stop )
2 min Walk

Property Agency Company

Company Address: 九龍黃大仙鳳德道51號a1地舖
Company License Number: C-095931-A003
Sell: 122 Rental: 6
Century 21 Ideatop Property Agency

Contact

Anson Tse Name Card

Personal License Number: E-256877
English    Cantonese    Mandarin

Eva Name Card

Personal License Number: E-080906
English    Cantonese    Mandarin

Ying Fuk Court - Other Units

Address Area Price Sold/Leased Profit/Loss
2026-02-11
Land Registry
2 Rooms
407ft²
HKD$3.38 M
@ $8,305
- 22.1%
2026-01-30
Land Registry
407ft²
HKD$3.15 M
@ $7,740
+ 205.1%
2026-01-09
Land Registry
559ft²
HKD$4.48 M
@ $8,014
+ 231.5%
2025-12-18
Land Registry
407ft²
HKD$3.08 M
@ $7,568
+ 203%
2025-12-03
Land Registry
559ft²
HKD$4.08 M
@ $7,299
+ 174.4%
2025-08-01
Land Registry
407ft²
HKD$3.1 M
@ $7,617
+ 189.9%
2025-04-23
Land Registry
559ft²
HKD$3.59 M
@ $6,422
+ 188.4%
2025-03-25
Land Registry
559ft²
HKD$3.68 M
@ $6,583
+ 148.8%
2024-06-27
Land Registry
559ft²
HKD$4.01 M
@ $7,170
+ 211.8%
2023-12-18
Land Registry
407ft²
HKD$2.8 M
@ $6,880
+ 181%
Hints
To avoid any fraud. We recommend No any prior online payment to the landlord or agency before site inspection or face to face greeting.
Our admin will manually verify all agency identity registration. If you find any mis-presentation or conduct by the agency, you can use the complaint form to inform us. Our admin will take every reported case seriously. Or you can submit your case to EAA (Tel: 852-21112777) directly by quotating the AdsId. We are always working with EAA to handle every cases happend on 28Hse.