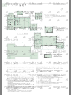
Mount Nicholson 3期 1期 洋房2

山頂 聶歌信山道8號

單位資料

屋苑期數:
1期
實用面積:
實9,217呎
成交宗數:
3

單位成交紀錄

2019-08-02

成交價
$5.39 億元
實用呎價
$58,468
成交類別
註冊處成交
成交虧損
-61.5%
上手成交日期
2018-04-16

2018-04-16

成交價
$13.99 億元
實用呎價
$151,785
成交類別
註冊處成交

2019-09-13

成交價
$5.81 億元
實用呎價
$63,024
成交類別
註冊處成交
成交賺幅
+7.8%
上手成交日期
2019-08-02