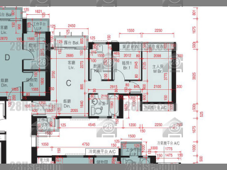
迎海 第四期(迎海‧駿岸) 7座 25樓 C室

馬鞍山 烏溪沙路8號

單位資料

屋苑期數:
第四期(迎海‧駿岸)
屋苑座數:
7座
實用面積:
實512呎
房間數量:
2房
成交宗數:
1

單位成交紀錄

2023-12-14

成交價
$770 萬元
實用呎價
$15,039
成交類別
註冊處成交
成交虧損
-10.5%
上手成交日期
2016-12-16