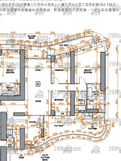
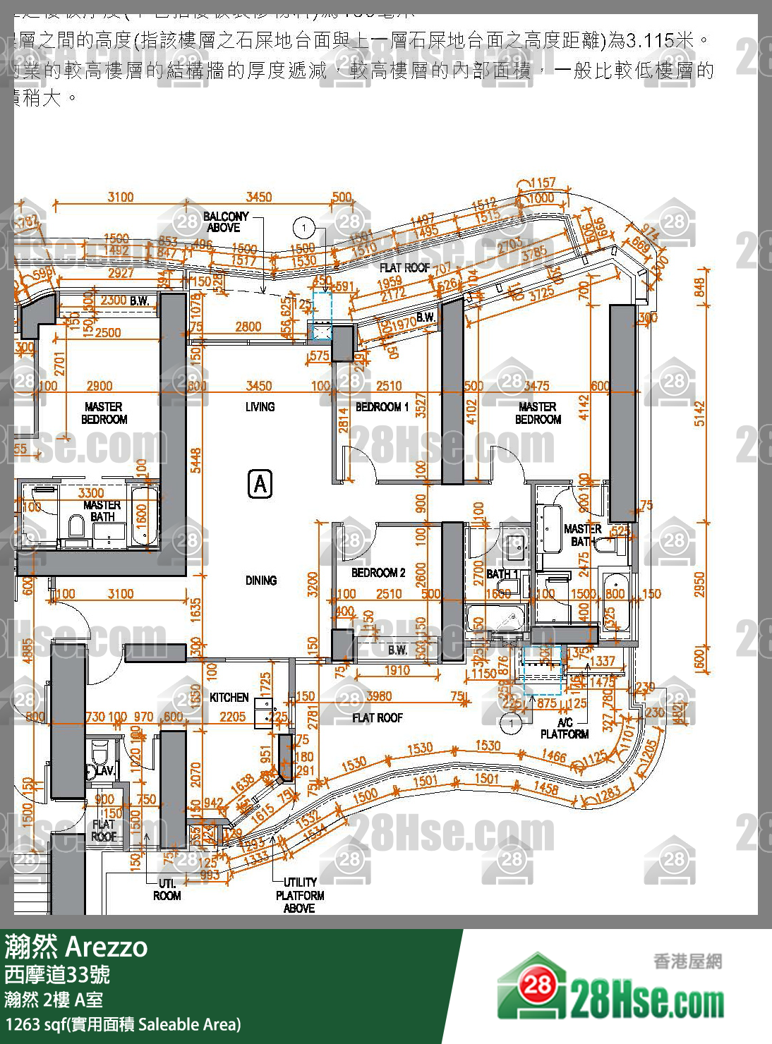
瀚然 瀚然2樓 A室

西半山 西摩道33號

單位資料

屋苑座數:
瀚然
實用面積:
實1,263呎
房間數量:
3
成交宗數:
0