滿名山 滿庭(大廈) 8座 1樓 A室

屯門(青山公路) 青盈路18, 28-29號

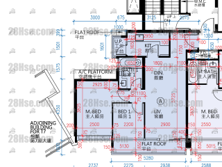
單位資料

屋苑期數:
滿庭(大廈)
屋苑座數:
8座
實用面積:
實581呎
房間數量:
2房
成交宗數:
1

單位成交紀錄

2020-09-11

成交價
$638 萬元
實用呎價
$10,981
成交類別
註冊處成交
成交虧損
-1.4%
上手成交日期
2016-06-24