滿名山 滿庭(大廈) 6座 9樓 J室

屯門(青山公路) 青盈路18, 28-29號

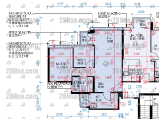
單位資料

屋苑期數:
滿庭(大廈)
屋苑座數:
6座
實用面積:
實592呎
房間數量:
2房
成交宗數:
1

單位成交紀錄

2021-07-22

成交價
$728 萬元
實用呎價
$12,297
成交類別
註冊處成交
成交賺幅
+18.6%
上手成交日期
2015-12-03