No.1 香港網上搵樓平台
Language 語言
|
會員登入
|
會員註冊
地產主頁
買樓
租屋
新盤
服務式住宅
屋苑成交
物業估價
家具
置業按揭
新聞資訊
校網
地產代理
易發樓價指數
地產主頁
屋苑專頁
離島
愉景灣
愉景灣
單位成交紀錄
第4期 蘅峰蘅欣徑
蘅欣徑6號
單位成交資料
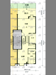
愉景灣 第4期 蘅峰蘅欣徑蘅欣徑6號地下 A室
愉景灣道
單位資料
屋苑期數:
第4期 蘅峰蘅欣徑
屋苑座數:
蘅欣徑6號
成交宗數:
0
打開Wechat應用程式,按「發現」後,再按「掃描」, 然後掃描以下QR Code 即可追蹤28Hse Wechat 公眾號。
確定
取消
確定
或
內容
姓名
聯絡電郵
聯絡電話
Whatsapp
重設
|
取消
發送
繁體中文
簡體中文
English
預設
辦公室 買賣
辦公室 租務
車位 買賣
車位 租務
店舖 買賣
店舖 租務