No.1 香港網上搵樓平台
Language 語言
|
會員登入
|
會員註冊
地產主頁
買樓
租屋
新盤
服務式住宅
屋苑成交
物業估價
家具
置業按揭
新聞資訊
校網
地產代理
易發樓價指數
地產主頁
屋苑成交
離島
愉景灣
愉景灣
單位成交紀錄
第1期 碧濤海燕徑
海燕徑55號
單位成交資料
1
/1
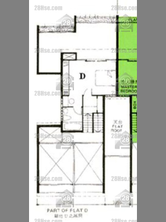
愉景灣 第1期 碧濤海燕徑海燕徑55號1樓 D室
愉景灣道
單位資料
屋苑期數:
第1期 碧濤海燕徑
屋苑座數:
海燕徑55號
成交宗數:
0
打開Wechat應用程式,按「發現」後,再按「掃描」, 然後掃描以下QR Code 即可追蹤28Hse Wechat 公眾號。
確定
取消
確定
或
內容
姓名
聯絡電郵
聯絡電話
Whatsapp
重設
|
取消
發送
繁體中文
簡體中文
English
預設
辦公室 買賣
辦公室 租務
車位 買賣
車位 租務
店舖 買賣
店舖 租務