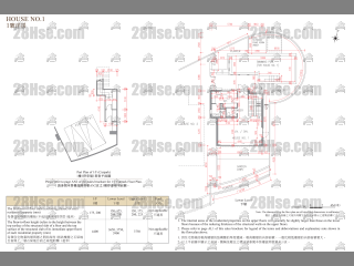
| 屋苑期數: | 獨立屋 |
| 建築面積: | 建2,260呎 |
| 實用面積: | 實1,551呎 |
| 成交宗數: | 1 |
| 成交價 |
$1,980 萬元
|
| 建築呎價 |
$8,761
|
| 實用呎價 |
$12,766
|
| 車位 |
1個
|
| 成交類別 |
註冊處成交
|
| 成交虧損 |
-34%
|
| 上手成交日期 |
2012-11-20
|