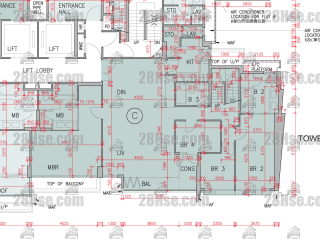
傲瀧 12座 7樓 C室

清水灣 清水灣道663號

單位資料

屋苑座數:
12座
實用面積:
實1,521呎
房間數量:
4房
成交宗數:
1

單位成交紀錄

2018-01-25

成交價
$3,125 萬元
實用呎價
$20,546
成交類別
註冊處成交