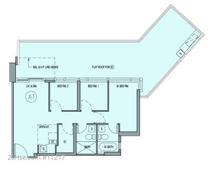
开放式
第3座: C10室
1伙
269尺
在售 - 已售 -



