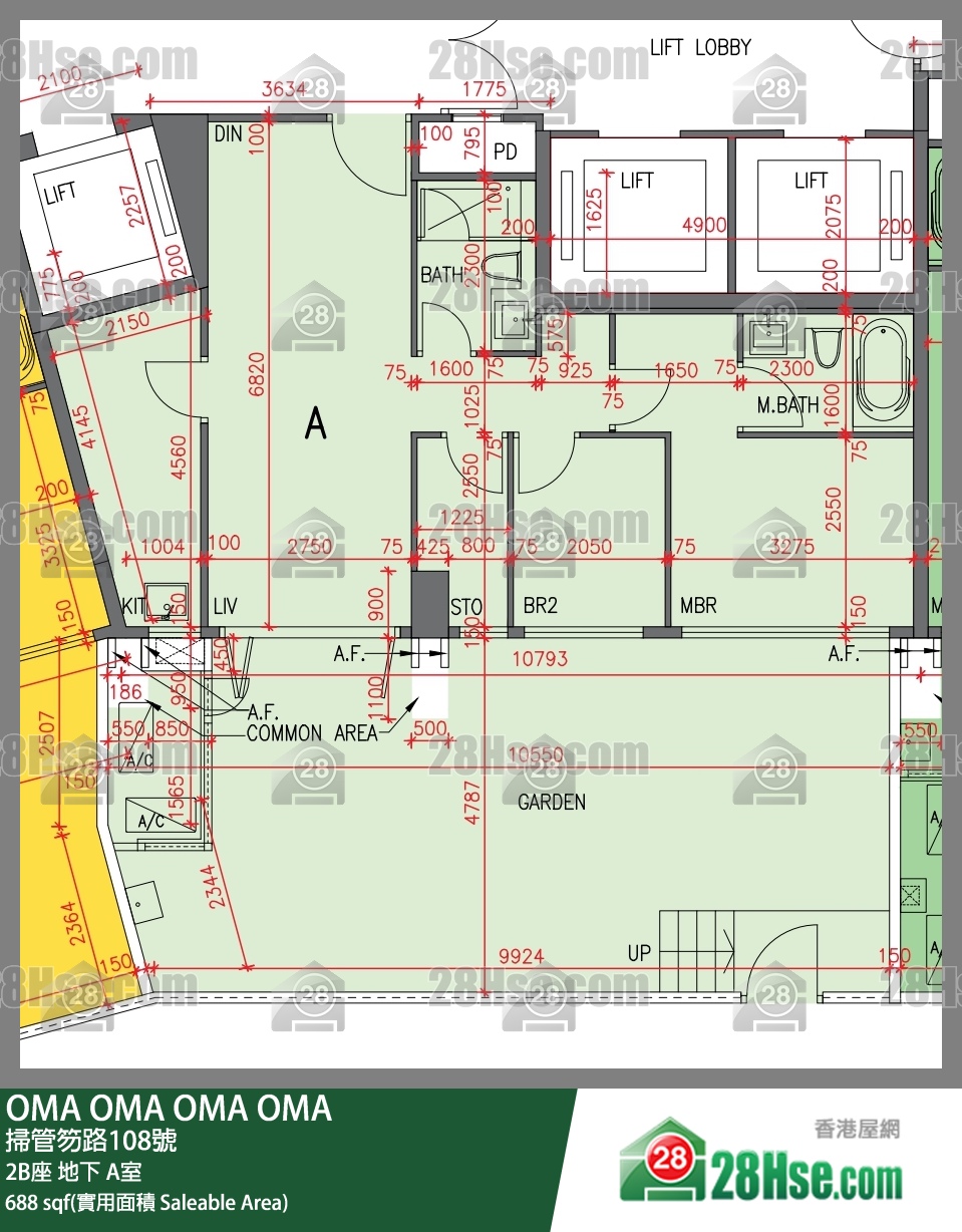
OMA OMA 2B座 A室

屯门(青山公路) 扫管笏路108号

单位资料

屋苑座数:
2B座
实用面积:
实688尺
房间数量:
2房
成交宗数:
1

单位成交纪录

2020-12-04

成交价
$1,048.8 万元
实用尺价
$15,244
成交类别
注册处成交