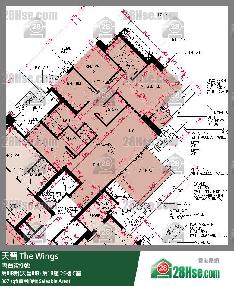
屋苑期数: | 第IIIB期(天晋IIIB) |
屋苑座数: | 第1B座 |
实用面积: | 实867尺 |
房间数量: | 3房 |
成交宗数: | 1 |
成交价 |
$1,850 万元
|
实用尺价 |
$21,338
|
成交类别 |
注册处成交
|
成交赚幅 |
+32.1%
|
上手成交日期 |
2015-01-30
|