创纪之城 #3804719 租盘楼盘详细资料

楼盘编号# 3804719
物业编号: C097181 (代理提供)

观塘 创纪之城 [代理盘]
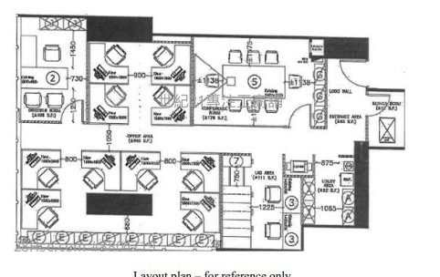
3室 高层
装修齐,写字楼家私!

1经理房,1会议房。
另有12座位配套,可加可减。
几分钟行到牛头角站。
交通,食市,近在咫尺。

工商大厦
普通盘
9 日前 刊登
浏览人次#75
有装修
雅致装修
刊登:2026-04-10 | 更新:2026-04-10
电话 QRCode
每月租金
租 $32,940 元
建筑面积
1,830 平方尺
尺租: @18
面积资料未核实
地区工商
创纪之城 Millennium City
九龙 观塘
单位楼层
高层
物业地址
观塘道370号

地产代理公司资料

公司地址: HK KLN NT
公司牌照号码: C-099057
售盘: 25 租盘: 177
世纪21专注工商铺

放盘联络人

周丽娜 Michelle Chow   卡片

代理个人牌照号码: E-480335
广东话    普通话    英文
注意事项
即使你对楼盘有多大兴趣,在与放盘人见面前,不要先付任何订金或费用。慎防网上骗子。
为了减少楼盘的不实情况,我们会对代理人身份及公司会进行 100% 核实。如发现楼盘有违规情况,可使用上面的投诉表单,我们的管理员会进行处理,你亦可致电 Tel: 21112777 EAA (地产代理监管局) 投诉 ,我们会配合 EAA 的每一宗案件。