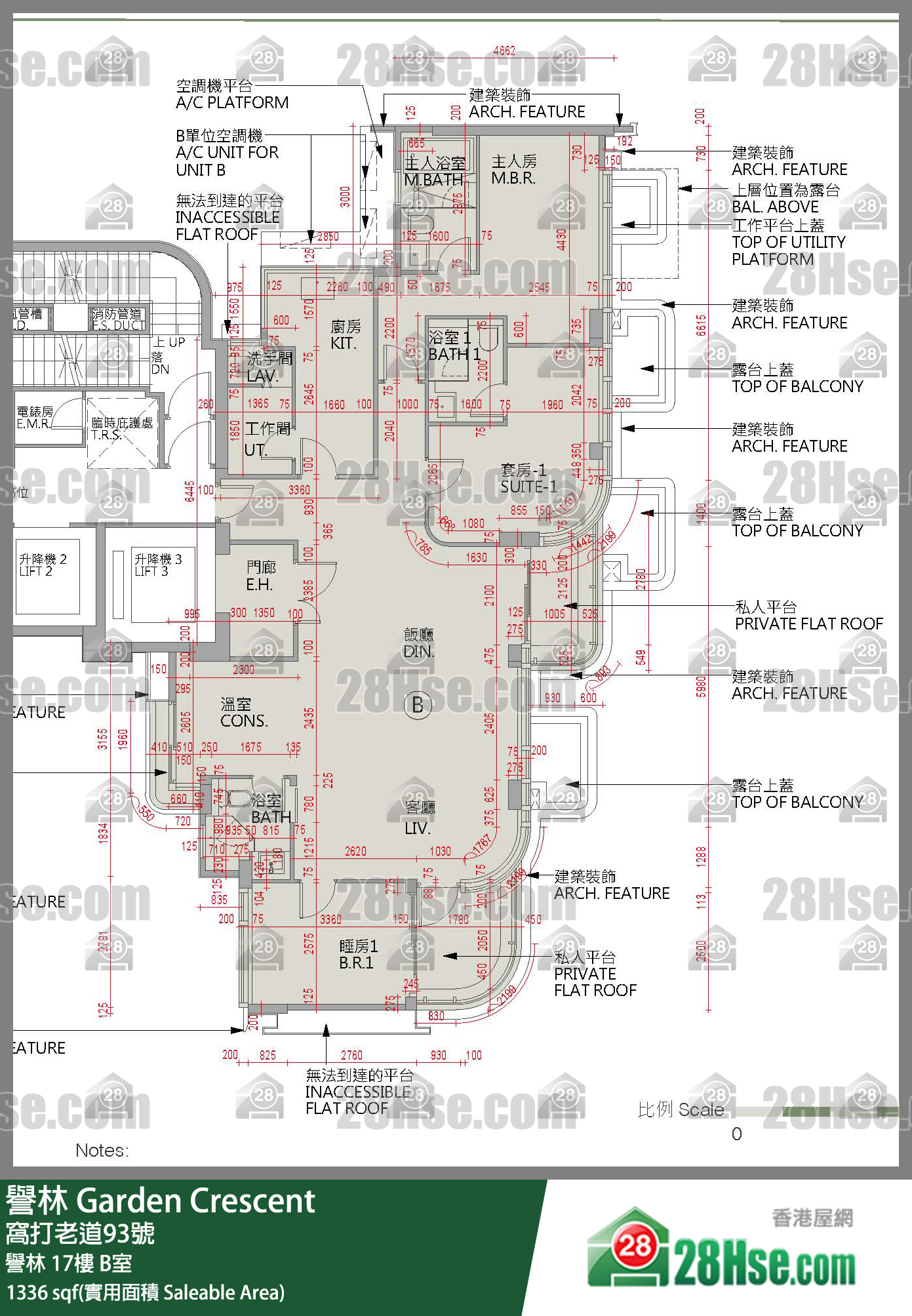
誉林 誉林 17楼 B室

何文田 窝打老道93号

单位资料

屋苑座数:
誉林
实用面积:
实1,336尺
房间数量:
3房
成交宗数:
1

单位成交纪录

2025-11-19

成交价
$3,874.4 万元
实用尺价
$29,000
成交类别
注册处成交