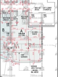
缇岸 (第二期)大厦 5座 A室

屯门(青山公路) 管翠路8号

单位资料

屋苑期数:
(第二期)大厦
屋苑座数:
5座
实用面积:
实301尺
房间数量:
1房
成交宗数:
1

单位成交纪录

2020-12-22

成交价
$587 万元
实用尺价
$19,502
成交类别
注册处成交