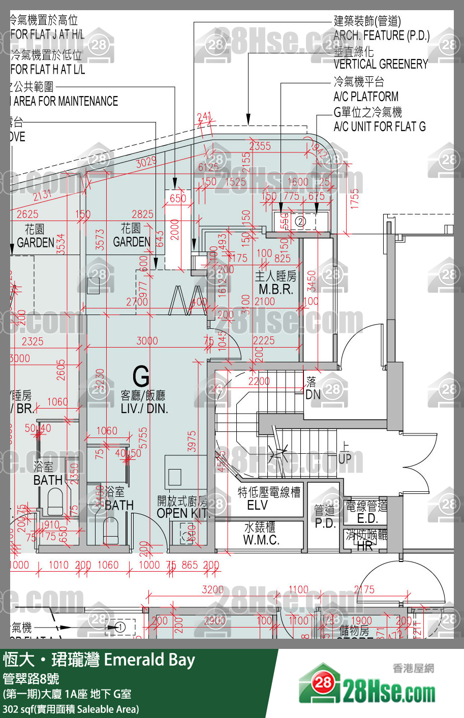
缇岸 (第一期)大厦 1A座 G室

屯门(青山公路) 管翠路8号

单位资料

屋苑期数:
(第一期)大厦
屋苑座数:
1A座
实用面积:
实302尺
房间数量:
1房
成交宗数:
1

单位成交纪录

2022-02-24

成交价
$510.2 万元
实用尺价
$16,894
成交类别
注册处成交