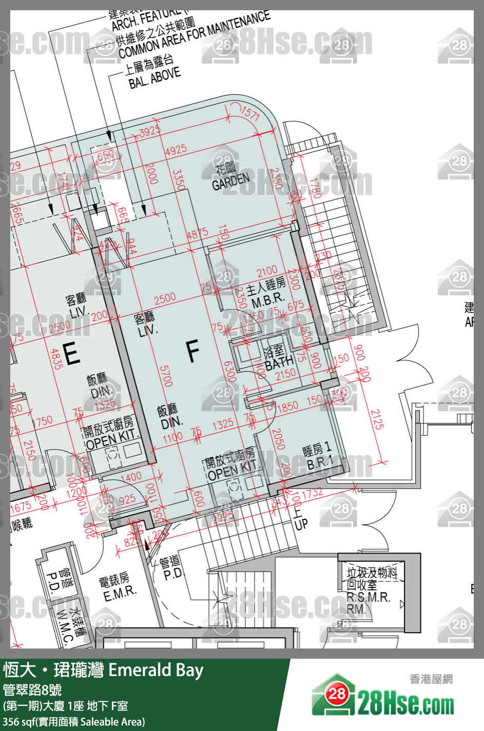
缇岸 (第一期)大厦 1座 F室

屯门(青山公路) 管翠路8号

单位资料

屋苑期数:
(第一期)大厦
屋苑座数:
1座
实用面积:
实356尺
房间数量:
1房
成交宗数:
1

单位成交纪录

2022-02-25

成交价
$552.8 万元
实用尺价
$15,527
成交类别
注册处成交