满名山 名庭(大厦) 5座 B室

屯门(青山公路) 青盈路18, 28-29号

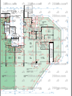
单位资料

屋苑期数:
名庭(大厦)
屋苑座数:
5座
实用面积:
实1,351尺
房间数量:
4房
成交宗数:
1

单位成交纪录

2025-07-09

成交价
$2,180 万元
实用尺价
$16,136
成交类别
注册处成交
成交亏损
-9.6%
上手成交日期
2017-12-27