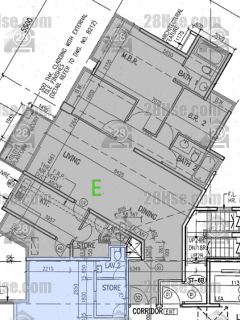
毕架山一号 6座 15楼 E室

九龙塘 笔架山道1号

单位资料

屋苑座数:
6座
建筑面积:
建1,416尺
实用面积:
实1,082尺
房间数量:
3房
成交宗数:
1

单位成交纪录

2018-09-11

成交价
$3,500 万元
建筑尺价
$24,718
实用尺价
$32,348
车位
1个
成交类别
注册处成交
成交赚幅
+40%
上手成交日期
2014-06-16