歌赋岭 红枫径 80号屋

粉岭 古洞南粉锦公路338号

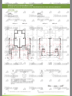
单位资料

屋苑期数:
红枫径
建筑面积:
建2,912尺
成交宗数:
1

单位成交纪录

2018-11-22

成交价
$2,400 万元
建筑尺价
$8,242
成交类别
注册处成交
成交亏损
-35.6%
上手成交日期
2012-03-20