No.1 香港网上搵楼平台
Language 语言
|
会员登入
|
会员注册
地产主页
买楼
租屋
新盘
服务式住宅
屋苑成交
物业估价
家具
置业按揭
新闻资讯
校网
地产代理
易发楼价指数
地产主页
屋苑专页
香港岛
北角,炮台山
北角
嘉文楼
单位成交纪录
嘉文楼
单位成交资料
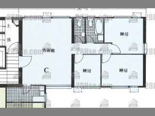
嘉文楼 嘉文楼14楼 C室
北角 建华街 1-7 号
单位资料
屋苑座数:
嘉文楼
建筑面积:
建888尺
实用面积:
实761尺
成交宗数:
0
打开Wechat应用程式,按「发现」后,再按「扫描」, 然后扫描以下QR Code 即可追踪28Hse Wechat 公众号。
确定
取消
确定
或
内容
姓名
联络电邮
联络电话
Whatsapp
重设
|
取消
发送
繁体中文
简体中文
English
预设
办公室 买卖
办公室 租务
车位 买卖
车位 租务
店铺 买卖
店铺 租务